home
work
visual
about
awards
press
contact
home
work
visual
about
awards
press
contact
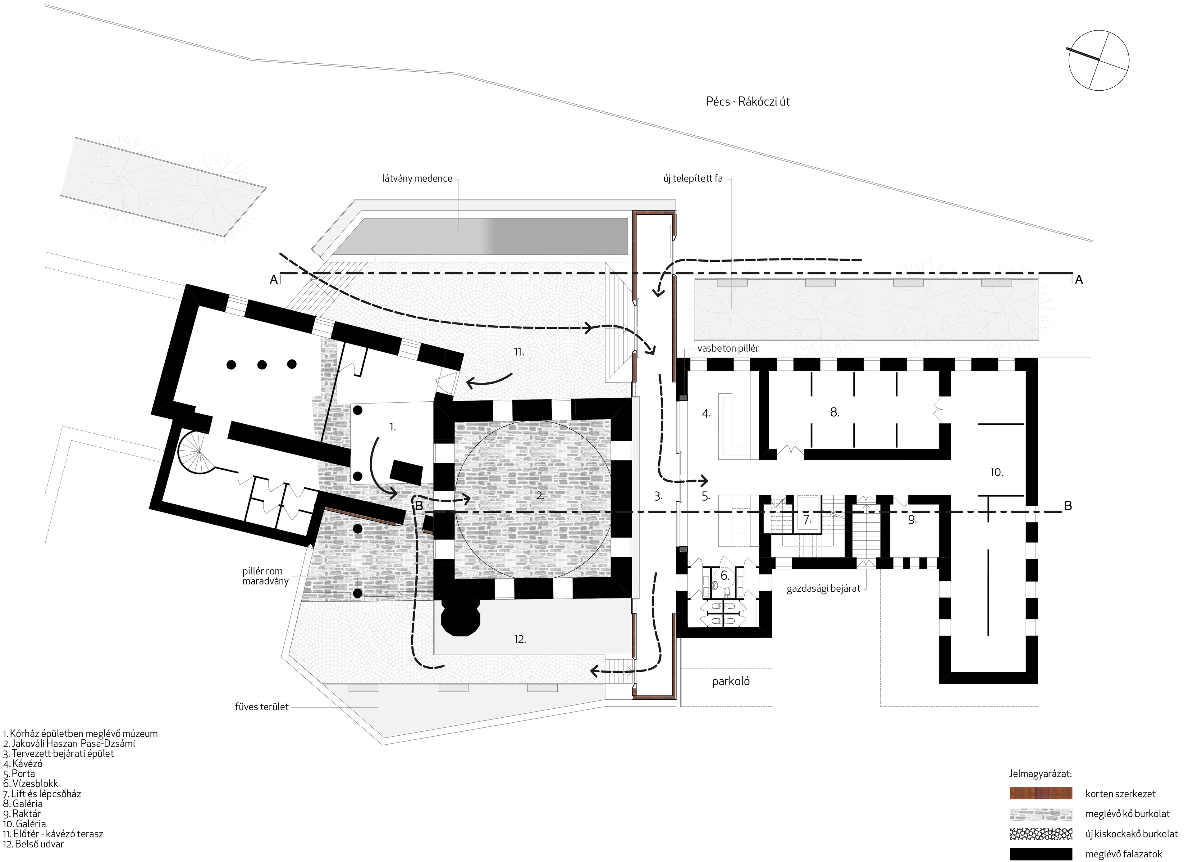
a new
entrance
Project year: 2013/2021
Architect: László Jaskó
Re-rendering: Péter Vági
Location: Pécs (HU)
Thanks for watching!
You may also like
Pannonhalma | apartment house | 2017
Home design
Flat ZV
House BP
Interior D
House CZA
Factory EF
House SZG
House SG
A2 Warehouse
↑
Back to Top