home
work
visual
about
awards
press
contact
home
work
visual
about
awards
press
contact
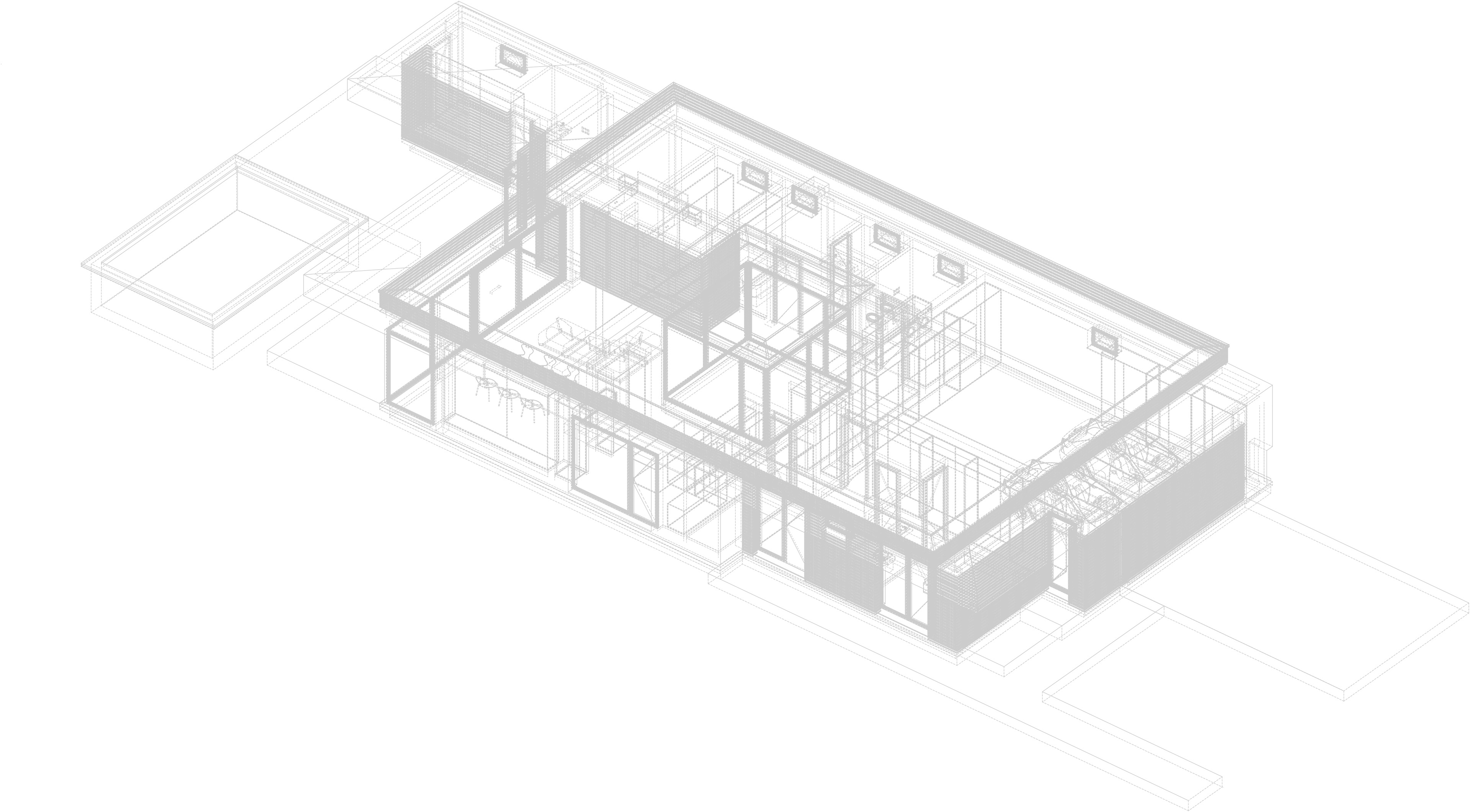
House GE
Architects: Péter Vági, László Jaskó
Project year: 2022
Location: Győr (HU)
Thanks for watching!
You may also like
L6 Apartments
Café
House LB
House GB
Pannonhalma | apartment house | 2017
House PEKM
House LL
Borostyán Garden
Cabin BG
Flat ZV
↑
Back to Top